1224 Tucker DriveLebanon, TN 37087




Mortgage Calculator
Monthly Payment (Est.)
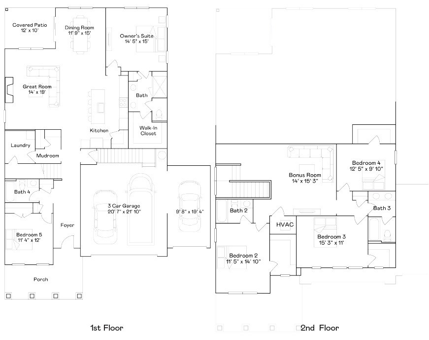
$2,568Discover the new Hawthorne plan featuring an oversized 3-car garage in the new Knoll Creek neighborhood with spacious yards! The Hawthorne features brick and hardiboard exterior with covered front porch, the primary suite and guest suite downstairs, a covered rear porch, an open concept kitchen with lots of cabinets and countertop space and a huge island with 42" shaker style cabinetry, quartz tops, tile backsplash, double ovens, gas cooking with vented hood, and stainless steel kitchen appliances. Luxurious primary suite includes oversized walk-in ceramic tile shower with built-in bench seat, tile floor, executive height cabinets, and quartz top. Beautiful LVP flooring throughout the main living areas and on the stair treads, durable LVT flooring in secondary baths and laundry. Elegant features throughout! Tankless water heater, Ring doorbell, Schlage keyless entry, Honeywell WIFI thermostat, gas fireplace, drop zone to keep everything neat and organized, 2" faux wood blinds on operable windows, and so much more! Beautiful location in the desirable Lebanon area, convenient drive to Nashville International Airport.
| 17 hours ago | Status changed to Active | |
| 17 hours ago | Listing updated with changes from the MLS® | |
| yesterday | Listing first seen on site |
Listings courtesy of Realtracs as distributed by MLS GRID
Based on information submitted to the MLS GRID as of 2025-11-05 09:21 AM UTC. All data is obtained from various sources and may not have been verified by broker or MLS GRID. Supplied Open House Information is subject to change without notice. All information should be independently reviewed and verified for accuracy. Properties may or may not be listed by the office/agent presenting the information.
The Digital Millennium Copyright Act of 1998, 17 U.S.C. § 512 (the “DMCA”) provides recourse for copyright owners who believe that material appearing on the Internet infringes their rights under U.S. copyright law. If you believe in good faith that any content or material made available in connection with our website or services infringes your copyright, you (or your agent) may send us a notice requesting that the content or material be removed, or access to it blocked. Notices must be sent in writing by email to DMCAnotice@MLSGrid.com.
The DMCA requires that your notice of alleged copyright infringement include the following information: (1) description of the copyrighted work that is the subject of claimed infringement; (2) description of the alleged infringing content and information sufficient to permit us to locate the content; (3) contact information for you, including your address, telephone number and email address; (4) a statement by you that you have a good faith belief that the content in the manner complained of is not authorized by the copyright owner, or its agent, or by the operation of any law; (5) a statement by you, signed under penalty of perjury, that the information in the notification is accurate and that you have the authority to enforce the copyrights that are claimed to be infringed; and (6) a physical or electronic signature of the copyright owner or a person authorized to act on the copyright owner’s behalf. Failure to include all of the above information may result in the delay of the processing of your complaint.

Did you know? You can invite friends and family to your search. They can join your search, rate and discuss listings with you.