Save
Ask
Tour
Hide
$434,900
1 Day On Site
1803 Flatwaters StreetSpring Hill, TN 37174
For Sale|Single Family Residence|Active
3
Beds
3
Total Baths
2
Full Baths
1
Partial Bath
1,861
SqFt
$234
/SqFt
2025
Built
Subdivision:
Marlons Creek
County:
Maury
Call Now: 615-537-1180
Is this the listing for you? We can help make it yours.
615-537-1180

Save
Ask
Tour
Hide
Mortgage Calculator
Monthly Payment (Est.)
$1,984Calculator powered by Showcase IDX, a Constellation1 Company. Copyright ©2025 Information is deemed reliable but not guaranteed.
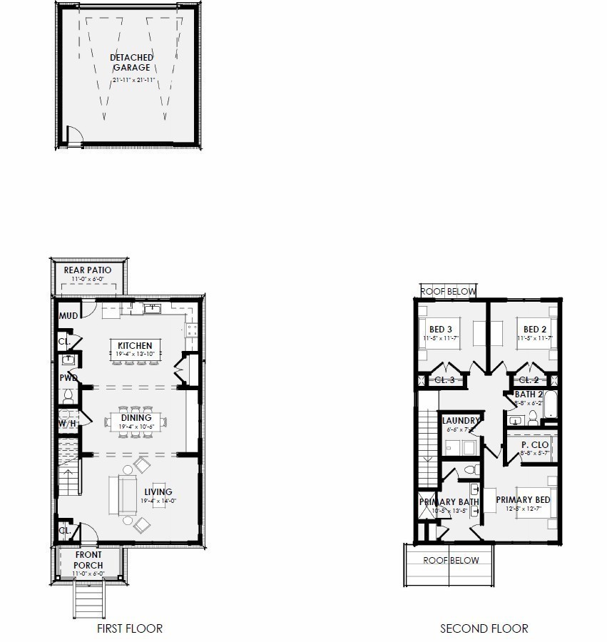
This home is TO BE BUILT. At this point in time, you may be able to make some selections. Welcome to Marlon's Creek, a gorgeous new construction community located in Spring Hill. The "Boone" plan features 3 BR, 2.5 BA, with open concept living. This home has hardwood throughout most common areas, 9 ft ceilings on the first and second floor, quartz countertops, tile floors in the wet areas, stainless steel appliances, and more! This brand-new community is zoned for ALL Battle Creek schools! Don't miss out on this one!
Save
Ask
Tour
Hide
Listing Snapshot
Price
$434,900
Days On Site
1 Day
Bedrooms
3
Inside Area (SqFt)
1,861 sqft
Total Baths
3
Full Baths
2
Partial Baths
1
Lot Size
N/A
Year Built
2025
MLS® Number
3068644
Status
Active
Property Tax
$1
HOA/Condo/Coop Fees
$65 monthly
Sq Ft Source
Builder
Friends & Family
Recent Activity
| yesterday | Listing first seen on site | |
| yesterday | Listing updated with changes from the MLS® |
General Features
Available on
2026-02-28
Foundation
Slab
Garage
Yes
Garage Spaces
2
Green Energy Efficient
Thermostat
Levels
Two
Number Of Stories
2
Parking
Detached
Parking Spaces
2
Pets
Yes
Property Condition
New Construction
Property Sub Type
Single Family Residence
Sewer
Public Sewer
Special Circumstances
Standard
SqFt Above
1861
SqFt Total
1861
Style
Traditional
Utilities
Electricity AvailableWater AvailableUnderground Utilities
Water Source
Public
Interior Features
Appliances
Electric OvenElectric RangeDishwasherDisposalMicrowave
Basement
Other
Cooling
Central AirElectric
Flooring
CarpetOtherTile
Heating
CentralElectricHeat Pump
Interior
Entrance FoyerOpen FloorplanPantryWalk-In Closet(s)High Speed InternetKitchen Island
Laundry Features
Electric Dryer Hookup
Bedroom 1
Dimensions - 13x13Features - Walk-In Closet(s)
Bedroom 2
Dimensions - 12x12
Bedroom 3
Dimensions - 12x12
Dining Room
Dimensions - 19x11
Kitchen
Dimensions - 19x14
Living Room
Dimensions - 19x14
Master Bathroom
Features - Double Vanity
Save
Ask
Tour
Hide
Exterior Features
Construction Details
Fiber Cement
Lot Features
LevelCleared
Patio And Porch
PorchCoveredPatio
Roof
Shingle
Community Features
Association Amenities
PlaygroundTrail(s)
Association Dues
65
Community Features
Sidewalks
HOA Fee Frequency
Monthly
Schools
School District
Unknown
Elementary School
Battle Creek Elementary School
Middle School
Battle Creek Middle School
High School
Battle Creek High School
Listing courtesy of HVH Realty, LLC
Listings courtesy of Realtracs as distributed by MLS GRID
Based on information submitted to the MLS GRID as of 2025-12-28 10:06 PM UTC. All data is obtained from various sources and may not have been verified by broker or MLS GRID. Supplied Open House Information is subject to change without notice. All information should be independently reviewed and verified for accuracy. Properties may or may not be listed by the office/agent presenting the information.
The Digital Millennium Copyright Act of 1998, 17 U.S.C. § 512 (the “DMCA”) provides recourse for copyright owners who believe that material appearing on the Internet infringes their rights under U.S. copyright law. If you believe in good faith that any content or material made available in connection with our website or services infringes your copyright, you (or your agent) may send us a notice requesting that the content or material be removed, or access to it blocked. Notices must be sent in writing by email to DMCAnotice@MLSGrid.com.
The DMCA requires that your notice of alleged copyright infringement include the following information: (1) description of the copyrighted work that is the subject of claimed infringement; (2) description of the alleged infringing content and information sufficient to permit us to locate the content; (3) contact information for you, including your address, telephone number and email address; (4) a statement by you that you have a good faith belief that the content in the manner complained of is not authorized by the copyright owner, or its agent, or by the operation of any law; (5) a statement by you, signed under penalty of perjury, that the information in the notification is accurate and that you have the authority to enforce the copyrights that are claimed to be infringed; and (6) a physical or electronic signature of the copyright owner or a person authorized to act on the copyright owner’s behalf. Failure to include all of the above information may result in the delay of the processing of your complaint.
Listings courtesy of Realtracs as distributed by MLS GRID
Based on information submitted to the MLS GRID as of 2025-12-28 10:06 PM UTC. All data is obtained from various sources and may not have been verified by broker or MLS GRID. Supplied Open House Information is subject to change without notice. All information should be independently reviewed and verified for accuracy. Properties may or may not be listed by the office/agent presenting the information.
The Digital Millennium Copyright Act of 1998, 17 U.S.C. § 512 (the “DMCA”) provides recourse for copyright owners who believe that material appearing on the Internet infringes their rights under U.S. copyright law. If you believe in good faith that any content or material made available in connection with our website or services infringes your copyright, you (or your agent) may send us a notice requesting that the content or material be removed, or access to it blocked. Notices must be sent in writing by email to DMCAnotice@MLSGrid.com.
The DMCA requires that your notice of alleged copyright infringement include the following information: (1) description of the copyrighted work that is the subject of claimed infringement; (2) description of the alleged infringing content and information sufficient to permit us to locate the content; (3) contact information for you, including your address, telephone number and email address; (4) a statement by you that you have a good faith belief that the content in the manner complained of is not authorized by the copyright owner, or its agent, or by the operation of any law; (5) a statement by you, signed under penalty of perjury, that the information in the notification is accurate and that you have the authority to enforce the copyrights that are claimed to be infringed; and (6) a physical or electronic signature of the copyright owner or a person authorized to act on the copyright owner’s behalf. Failure to include all of the above information may result in the delay of the processing of your complaint.
Neighborhood & Commute
Source: Walkscore
Save
Ask
Tour
Hide

Did you know? You can invite friends and family to your search. They can join your search, rate and discuss listings with you.